Weefor Arq. A construção da cidade a partir do edifício.
O desafio e o prazer de projetar edifícios vai além das complexidades imanentes do objeto arquitetônico. O olhar que vagueia a cidade necessita encontrar neste cenário urbano algo que represente, que o situe no mundo. Pensar um edifício qualquer, sobretudo este residencial, é um dos modos mais importantes e pertinentes de se fazer cidade.
Esta introdução aponta o partido arquitetônico dessa proposta, somado aos valores que o próprio edital do concurso emula. A oportunidade de se fazer cidade olhando dentro dela. Assim, a responsabilidade do arquiteto e do incorporador não pode passar ao largo da natureza urbana dos edifícios. Neste sentido que a interpretação do programa procura salientar condições cotidianas dessa vital relação entre a parte e o todo, estimulando singelos discursos como da transição suave entre o público e privado no acesso ao edifício; a dinâmica visual que permite explorar perspectivas da cidade, como indica o trabalho das fachadas, todas elas diferentes entre si de acordo com cada tipologia das unidades habitacionais; e, ainda, o uso comercial na base do edifício, estimulando um uso fundamental à vida na cidade, conformando junto ao uso residencial um bloco homogêneo. Ali, o cotidiano se descortina, interna e externamente, sem a necessidade de uma ruptura abrupta entre as partes, continuando o legado de um bairro multifuncional e diverso.
O controle de acesso se restringe ao amplo balcão disposto no hall de entrada. Tal entrada, próxima da esquina, procura valorizar o desenho do espaço público ao entender a sua inserção como continuação do espaço externo. O acesso de veículos lida com uma situação existente nos limites do lote – a rua interna que abriga uma linda araucária permanece (quase toda ela permeável), tendo um uso exclusivo para os veículos do edifício.
Estes destaques do projeto fazem parte das diretrizes de nossa proposta. A ideia de uma bairro mais colaborativo e saudável encontra nesses espaços um gesto de gentileza urbana, de estímulo e acolhimento, como exemplo possível de encararmos uma saudável relação espacial entre o público e o privado.
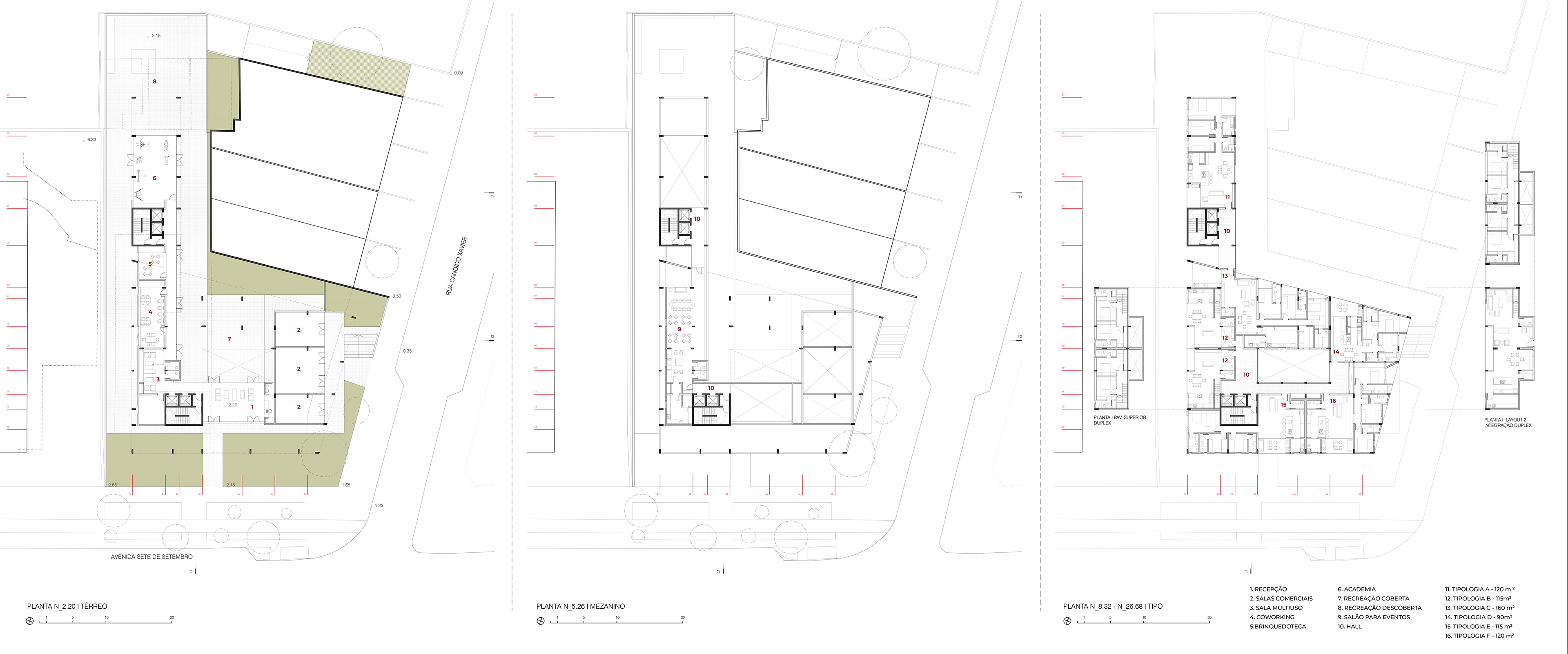
HABITAÇÃO
Ao todo, 43 unidades habitacionais foram implantadas e um grande espaço comercial (que pode ser alocado em módulos) em 8 pavimentos. A proposta foi dispor as unidades nos perímetros máximos permitidos, de modo a aproveitar todo o seu potencial, atendendo as necessidades sugeridas das áreas privativas.
Ordenar a distribuição de diferentes tipologias num único pavimento foi um desafio estimulante. As unidades foram projetadas modularmente a partir de uma grelha básica de 1,20m. Foram cinco tipos de apartamentos: os menores de 90m² em versões de único pavimento e dúplex (os dois tipos com duas suítes); 115m² com três suítes; 120m² em duas versões - três suítes ou uma suíte e dois dormitórios; e, por fim, a maior unidade com 160m² dispondo de três suítes e um pequeno cômodo multiuso além dos programas das salas de estar, jantar, cozinha, lavanderia, lavabo e terraço com churrasqueira, comum à todas unidades.
Dois núcleos verticais marcam os acessos aos apartamentos. Um núcleo serve às unidades de 90m², 115 m², 120 m² e o dúplex de 90m². Outro núcleo serve às unidades de 120m² e 160m². A flexibilidade do arranjo dos apartamentos parte de uma premissa estrutural. As divisórias leves se distribuem sob as vigas que se ligam às marcantes linhas verticais dos pilares aparentes na base do conjunto (ver esquema de materiais e técnicas construtivas). Do esqueleto estrutural partem as prumadas hidráulicas, estrategicamente locadas – as áreas úmidas entram em sintonia com esta lógica. As aberturas ao exterior seguem uma padronização de quatro tipos de caixilhos, formando o desenho das faces: os modelos de caixilhos se relacionam a determinados programas: 1) salas, 2) cozinha e lavanderia, 3) dormitórios e 4) banheiros.
Diante da escala do edifício, de seu corpo exuberante fruto das limitações do lote e das exigências legislativas e programáticas, procura-se sobressair um desenho limpo, revelador das partes componentes da edificação, dando ênfase ao bloco total e as linhas ritmadas das aberturas.
COMUNAL
As áreas comuns do edifício se localizam nos pavimentos de acesso. Em conjunto com o hall de entrada, os programas da academia, brinquedoteca, sala multiuso condominial e um espaço para coworking (este programa alinhado com as necessidades atuais de trabalho, garante uma proposta inovadora e antenada para novos tempos).
A área de festas se localiza no mezanino – destacando o uso e atentando-se ao movimento que tal programa sugere de visitantes. A área de recreação conta com um amplo espaço coberto e descoberto, adequado à atividades externas e de convívio e permanência devidamente ensolaradas. Todas as vagas dos veículos são cobertas, ocupando dois subsolos.
Espera-se que a disposição programática da edificação não só garanta as qualidades necessárias do uso privativo, como também em seu uso comunal e comercial espelhe a vida urbana em suas constantes idas e vindas, descobertas e prazeres de um cenário porvir.
SUSTENTABILIDADE, CONFORTO E EFICIÊNCIA
A proposta segue as tendências mais atuais sobre eficiência dos recursos materiais disponíveis em mercado. O complexo será atendido por soluções de energia solar, aproveitando o amplo espaço para locação das placas no ático; medidas de redução de consumo de água, ao prever a instalação de cisternas nos jardins do empreendimento conectadas aos pontos coletores das águas pluviais localizadas na cobertura da torre e no nível térreo. As aberturas ao exterior estrategicamente locadas de acordo com o layout de cada apartamento, a presença de um grande fosso de iluminação e ventilação formando um marcante pátio, garantem um eficiente conforto térmico e lumínico. E a especificação de toda a caixilharia visa à eficiência acústica exigida das Normas Brasileiras.
ESPACIALIDADE, MOBILIDADE, INTEGRAÇÃO
O edifício como parte da textura do tecido urbano. A integração do objeto arquitetônico ao espaço público ressalta valores intrínsecos à vida urbana, como pode se observar ao gesto de acolhimento do público externo às áreas livres do conjunto, salientadas com o uso comercial anexado à entrada residencial.
MATERIAIS E TÉCNICAS CONSTRUTIVAS
Partindo da premissa de uma obra rápida e eficiente, a proposta sugere materiais e técnicas comuns ao mercado da construção. Pilares e vigas em concreto armado, com pouca variação de altura. Recomendamos o uso do concreto armado também para as lajes. Diante da irregularidade da planta tipo, fez-se necessário a utilização de algumas vigas de transição no nível do pavimento térreo, adequando os eixos ao uso racional dos subsolos para o estacionamento.